4228 Fallingbrook Road, London South, Ontario N6P 0H8 (29596523)

4228 Fallingbrook Road London South, Ontario N6P 0H8

2 Bedroom 3 Bathroom 1,500 - 2,000 ft2
Bungalow Fireplace Central Air Conditioning, Air Exchanger Heat Pump Landscaped

$1,349,000

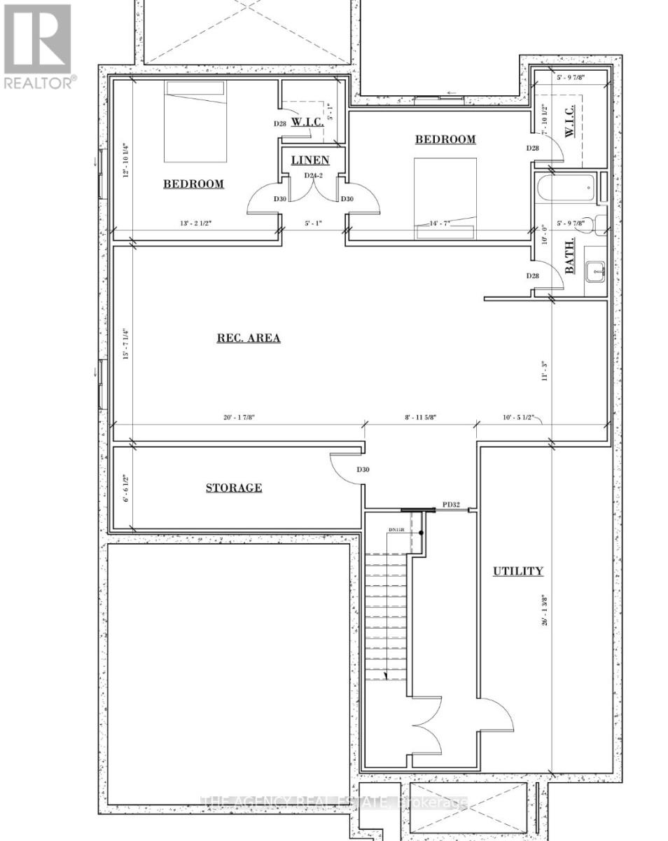
Tucked into the prestigious enclave of Heathwoods in Lambeth. This exceptional bungalow sitson a premium 50 x 152 ft lot, bordered by a green space entrance and backing onto protectedtrees offering rare privacy and a peaceful natural backdrop just minutes to the 401, shopping,schools and dining.Thoughtfully designed with nearly 2,000 sq ft on the main level, this 2 bedroom, 2.5 bath homealso features an unfinished lower level with over 1,100 sq ft, a finished hallway and bathroomrough-in ideal for future bedrooms, living space or a custom layout tailored to your needs.This home is defined by two standout themes. First, a refined Scandinavian-inspired aesthetic with a focus on simplicity, warmth and upscale finishes. Clean lines, natural textures, custom millwork, statement ceiling beams and expansive windows create a calm, elevated living experience that feels both modern and timeless.Second, a commitment to eco-conscious, high-efficiency living. Designed for long-term sustainability and low maintenance, the home features a durable metal roof, solar panel system, high-performance heat pump, multi-zone HVAC, enhanced insulation, and energy-efficient systems throughout delivering comfort, cost savings and peace of mind for years to come.The result is a rare offering that seamlessly blends design-forward living with smart, future-focused performance all in one of Lambeth's most sought-after communities. (id:53015)

Property Details

MLS® Number X12991614
Property Type Single Family
Community Name South V
Amenities Near By Park, Place Of Worship, Schools, Ski Area
Community Features School Bus
Features Wooded Area, Flat Site, Carpet Free, Sump Pump, Solar Equipment
Parking Space Total 6
Structure Deck

Building

Bathroom Total 3
Bedrooms Above Ground 2
Bedrooms Total 2
Age New Building
Amenities Fireplace(s), Separate Heating Controls
Appliances Garage Door Opener Remote(s), Oven - Built-in, Range, Water Heater - Tankless, Water Heater, Alarm System
Architectural Style Bungalow
Basement Development Unfinished
Basement Type Full (unfinished)
Construction Status Insulation Upgraded
Construction Style Attachment Detached
Cooling Type Central Air Conditioning, Air Exchanger
Exterior Finish Brick, Stucco
Fire Protection Alarm System, Monitored Alarm
Fireplace Present Yes
Foundation Type Concrete
Half Bath Total 1
Heating Fuel Electric
Heating Type Heat Pump
Stories Total 1
Size Interior 1,500 - 2,000 Ft2
Type House
Utility Power Generator
Utility Water Municipal Water

Parking

Attached Garage
Garage

Land

Acreage No
Land Amenities Park, Place Of Worship, Schools, Ski Area
Landscape Features Landscaped
Sewer Sanitary Sewer
Size Depth 152 Ft
Size Frontage 50 Ft
Size Irregular 50 X 152 Ft
Size Total Text 50 X 152 Ft|under 1/2 Acre

Rooms

Level Type Dimensions
Main Level Great Room 6.4 m x 5.26 m
Main Level Kitchen 3.73 m x 3.15 m
Main Level Office 3.51 m x 3.05 m
Main Level Primary Bedroom 4.36 m x 3.51 m
Main Level Bedroom 2 3.63 m x 3.32 m
Main Level Laundry Room 1.96 m x 1.96 m
Main Level Mud Room 2.41 m x 2.38 m
Main Level Pantry 1.55 m x 1.59 m

Utilities

Cable Installed
Electricity Installed
Sewer Installed

https://www.realtor.ca/real-estate/29596523/4228-fallingbrook-road-london-south-south-v-south-v

Contact Us

Contact us for more information

Generating Captcha

Rachael Polakovic
Broker of Record

(519) 472-0990

The Agency Real Estate
304-1886 Oxford Street West
London, Ontario N6K 0J8

(519) 472-0990

Your Favourites

 

No Favourites Found